Товаров:
На сумму: руб.
Каталог продукции
Акриловая ванна Акватика Архитектура BASIC
Описание
Акриловая ванна «Архитектура» придется по нраву любителям оригинального дизайна. Причудливая по форме внутренняя чаша вмещает 480 л воды. Архитектурная монументальность и волнообразная форма боковых поверхностей позволяют с комфортом разместиться даже вдвоем. Пользователей ждет масса приятных и полезных удобств: глубокая внутренняя чаша, эргономичная спинка со съемным подголовником и возможность получить в домашних условиях массаж уровня спа-салона. Акриловые ванны с гидромассажем – это уникальные технические системы. Многочисленные форсунки, вмонтированные в дно и боковые поверхности чаши, могут подавать воду в разных режимах и с регулируемой интенсивностью. Ванна «Архитектура» обладает отличной теплоемкостью, ремонтопригодностью и долговечностью. Вместительная модель, снабженная встроенным ручным душем, будет отлично смотреться в просторной ванной комнате.
Вариант комплектации:
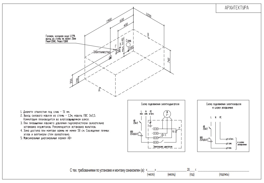
- BASIC (гидромассаж (пневматическое управление, 8 форсунок), рама, слив-перелив)
Важно! Вариант ванны правая или левая необходимо указывать при заказе. Разворот ванны Акватика определяет по голове, если подходить со стороны фронтального экрана.
Характеристики
| Категория | Ванны |
| Производитель: | Акватика |
| Страна: | Россия |
| Размер: | 190x120 см |
| Форма: | прямоугольная |
| Объем: | 480 л |
| Гидромассаж: | есть |
| Гарантия: | 3 года |
| Боковой массаж: | 8 форсунок |
| Система управления: | пневматическая |
| Цвет: | белый |
| Материал: | акрил |
| Кол-во человек: | 2 |
| Регулировка интенсивности массажа: | есть |
Дополнительные комплектующие:
- фронтальная панель - 11054 рублей.
- боковая панель левая - 9352 рублей.
- боковая панель правая- 9352 рублей.
- аэромассаж - 26300 рублей.
- подголовник Техногель - 10080 рублей.
- подводный прожектор (белый) - 10680 рублей.
- подводный прожектор (мультицвет) - 15800 рублей.
- Аквасаунд - 30920 рублей.
Смесители:
- Ниагара - 27320 рублей.
- BauEdge (GROHE - Германия) - 39000 рублей.






